Torna all'elenco

Rif:Monti 122

Appartamento a Milano - Via Vincenzo Monti - MQ.122

https://mgx.a-cdn.net/image/1892464574/m.jpg

Informazioni

Prezzo: € 1.080.000
Metratura: 122 mq
Tipologia: Appartamento
Anno: 1920
Piano: 2
Stato di Fatto: Buono
Nr.Locali: 3
Riscaldamento: Centralizzato
Camere: 2
Cucina: Non Presente
Bagni: 2
Balconi: 1
Box: Assente
Spese Cond. Mensili: € 350
Classe En.: C
IPE: 70.00

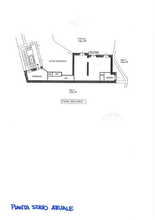
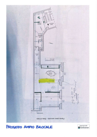
Appartamento in vendita a Milano zona via Vincenzo Monti, sito in via Vincenzo Monti, di 122mq

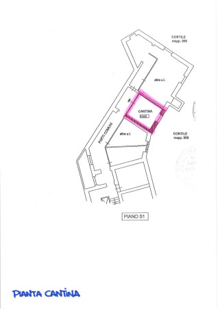
In Palazzo Signorile con servizio di portineria ed ascensore vendiamo splendido Trilocale di 122 mq composto da: ingresso, soggiorno con cucina a vista, due camere e doppi servizi. Zona lavanderia. Balcone. Cantina. Attualmente accatastato ad uso ufficio con possibilità di trasformazione in abitazione. Impianto di condizionamento. Le foto rappresentano la ristrutturazione avvenuta per un altro appartamento analogo a questo già compravenduto. Possibilità di trasformarlo in ampio bilocale o trilocale. Da Personalizzare. Mezzi di trasporto pubblico: linea metropolitana M1 Cadorna e M2, oltre ad linee tramviarie 1, 27. Oltre ai tanti negozi, locali e servizi tipici del zona limitrofa a Piazza Castello, Piazzale Cadorna nel cuore di Magenta alle spalle di Piazza Sant'Amborgio e Santa Maria delle Grazie. Presenti in zona ampia disponibilità di linee di mezzi di superfice, linee autubus e linee tramviarie. Zona ampiamente residenziale e commerciale mette a disposizione negozi di prima necessità, farmacie e scuole, dalla materna, elementari, medie e licei. Nelle vicinanze troviamo il splendido parco Sempione. Forte passaggio pedonale e di mezzi automobilistici rendono particolarmente vantaggiosa la logistica per qualsiasi attività commericale. La società Fontana Immobiliare srl dichiara che fin dalla creazione di questo sito web, e durante la sua quotidiana gestione, viene svolto un accurato lavoro per fornire alla nostra clientela le informazioni più aggiornate, corrette e chiare possibili. E’ evidente che sono possibili errori involontari, e gli stessi vengono fatti in assoluta buona fede. La società Fontana Immobiliare srl lavora ogni giorno per inserire informazioni complete ed aggiornate, ma non fornisce garanzie e non si assume alcuna responsabilità per eventuali errori e/o omissioni di informazioni e/o di dati degli immobili. Le immagini e le descrizioni di tutti i nostri annunci, relativi agli immobili pubblicati in vendita ed in locazione, non costituiscono inoltre elemento di pretesa contrattuale pertanto, nei più ampi termini di legge, la società Fontana Immobiliare srl declina ogni responsabilità.
Prezzo Trattative Riservate